懸臂貨架
產品簡介:
懸臂式貨架簡介: 產品名稱:懸臂式貨架 產品種類:重型貨架 懸臂式貨架承載(單層):常規均載1000KG~3000KG 懸臂式貨架單片規格(立柱+底座,可以看做懸臂式貨架的高和寬) 立柱規格(高) 底座規格(寬) 2000 1100 2200 1200 2400 1300 2500 1400 2600 20

懸臂貨架,無錫懸臂貨架,懸臂貨架廠

懸臂貨架,無錫懸臂貨架,懸臂貨架廠

懸臂貨架,無錫懸臂貨架,懸臂貨架廠

懸臂貨架,無錫懸臂貨架,懸臂貨架廠

懸臂貨架,無錫懸臂貨架,懸臂貨架廠
懸臂式貨架簡介:
產品名稱:懸臂式貨架
產品種類:重型貨架
懸臂式貨架承載(單層):常規均載1000KG~3000KG
懸臂式貨架單片規格(立柱+底座,可以看做懸臂式貨架的高和寬)
|
立柱規格(高) |
底座規格(寬) |
|
2000 |
1100 |
|
2200 |
1200 |
|
2400 |
1300 |
|
2500 |
1400 |
|
2600 |
2000 |
|
2800 |
2200 |
|
3000 |
2400 |
|
3200 |
2600 |
注意:立柱和底座都是由2片C型鋼組成(單位:根),底座規格是單邊長度,如果需要雙向懸臂式貨架就需要2根(即底座規格*2)。

懸臂式貨架懸臂規格:
|
規格 |
長度 |
|
(100-60)*50 |
600 |
|
(100-60)*60 |
700 |
|
(110-70)*50 |
800 |
|
(110-70)*60 |
900 |
|
(120-80)*60 |
1100 |
|
(120-80)*70 |
1200 |
|
(120-80)*80 |
1300 |
|
|
1400 |
注意:規格是指懸臂的截面尺寸,因為懸臂式有粗細變化的,所以括號內的數字代表值。由于懸臂的尺寸太多,所以上面的任意規格和任意長度都能組合。懸臂式貨架的承載主要是考慮懸臂的選擇,由于數據太多,不便一一描述,但是懸臂的實際承載單根不能超過1000kg,而且懸臂的前端與后端的承載也截然不同。如果您對懸臂式貨架有需求,請聯系我們13357913301,我們會有專業工程師為您選擇合理的尺寸。
常規顏色:電腦灰,中蘭,橘紅,軍綠
產品介紹:
懸臂式貨架適于存放長形鋼材,板材,環形物料等。前伸的懸臂具有良好的結構穩定性,承載能力強,管理也方便,更具承載的不同也可分為輕型,中型,重型,普通懸臂可達500KG每層,經過特殊加固的懸臂可達到2噸~3噸每層。懸臂式貨架可根據客戶的用途來定制,賽維亞貨架作為江蘇重型懸臂貨架專業供應商,可以根據客戶需求生產單面懸臂貨架和雙面懸臂式貨架,采用背拉加強懸臂式貨架的穩定性,卡孔節距為75mm能分配上下空間,真正做到空間利用。
懸臂式貨架結構組成:
下圖是以前懸臂式貨架的結構組成,現在的懸臂式貨架立柱采用2根C型鋼雙拼的形式了,更加便捷,性價比更高!

懸臂式貨架材料選擇:
在上面的懸臂式貨架規格中其實已經注明了材料的規格,具體參數可以參考下圖:

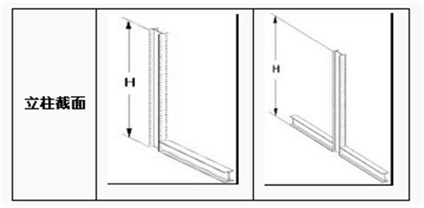
懸臂截面圖:


懸臂式貨架局部細節圖:

懸臂式貨架安裝方法:
懸臂式貨架安裝整體效果圖
懸臂安裝實景圖:
懸臂式貨架價格:
懸臂式貨架的選擇比較復雜,因為他有單面懸臂式貨架和雙面懸臂式貨架,要根據場地的規劃來設置,而且懸臂式貨架的承載能力取決懸臂的數量,懸臂的規格以及貨物堆放的位置等諸多因素,需要專業工程師設計并確定方案后才能報價。如果您對懸臂式貨架有需求,可以先致電我們:0510-88228378,與我們取得聯系,我們會安排專業工程師上門測量并提供設計方案。
懸臂式貨架種類介紹:
懸臂式貨架其實有兩種,一種是只有單面有懸臂,叫做單面懸臂式貨架;另一種雙面都有懸臂,所以叫做雙面懸臂式貨架。假設我們車間第一排懸臂式貨架需要靠墻,那應該選擇單面懸臂式貨架,然后在不靠墻的地方選擇雙面懸臂式貨架,這樣就能利用車間場地了。其實單面懸臂式貨架和雙面懸臂式貨架的其別只是底座,用一張簡易的圖展示:
單向懸臂貨架適用于存放長形物料,板材和環形物料。前伸的懸臂具有結構穩定,承載能力好,管理方便,視野寬闊。懸臂前端設計有擋板,防止環形物料滾落,很好的起著安全的作用。懸臂貨架是可以固定,也可以設計成移動的。單向懸臂貨架單面承載和物料的長度,物料存放位置,懸臂長度,材料規格都有直接關系,所以沒有常規規格,賽維亞貨架所生產的單向懸臂貨架常規單層承載力均載約1000KG~3000KG。
更多單面懸臂貨架的圖片:
介紹:
雙向懸臂貨架適用于存放長形物料,板材和環形物料。前伸的懸臂具有結構穩定,承載能力好,管理方便,視野寬闊。懸臂前端設計有擋板,防止環形物料滾落,很好的起著防范措施的作用。懸臂貨架是可以固定,也可以設計成移動的。雙向懸臂貨架單面承載和物料的長度,物料存放位置,懸臂長度,材料規格都有直接關系,所以沒有常規規格,賽維亞貨架所生產的雙向懸臂貨架常規單層承載力均載約1000KG~3000KG。
更多雙向懸臂式貨架圖片:
更多懸臂式貨架現場圖片:

賽維亞金屬制品有限公司作為優質倉儲設備生產廠家,專業生產各類車間倉儲貨架,我公司所生產的倉儲貨架都是組裝型,能根據可以的需求自由調節高度,而且能在原有貨架的基礎上無限連接新貨架。無錫賽維亞貨架所生產的倉儲貨架都是根據客戶需求規格所定制的,我們會引導客戶制定有效的倉庫空間優化方案。